La reforma de un dúplex para una pareja de amantes de la lectura
La reforma de un dúplex para una pareja de amantes de la lectura
“Para diseñar es preciso comprender cómo desean vivir las personas que lo van a habitar” explican desde Coblonal Interiorismo, responsables del diseño y reforma de este apartamento dúplex, situado en el barrio del Poblenou de Barcelona y definido como “una pieza perfectamente ajustada al briefing de nuestros clientes”.
![]()
Se dice que una buena forma de conocer a alguien es observar su biblioteca. A juzgar por la amplia colección de libros que ocupan las numerosas librerías de esta vivienda, se puede afirmar que sus propietarios son una pareja apasionada de la literatura, del arte, de la historia, el pensamiento social y la medicina, entre otras variadas disciplinas.
En consecuencia, la reforma integral llevada a cabo por el estudio de interiorismo Coblonal ha redistribuido la vivienda teniendo en cuenta, por un lado, alojar distintos espacios de almacenaje para la extensa biblioteca, y por el otro, generar ambientes que faciliten la lectura y el estudio.
Una nueva distribución
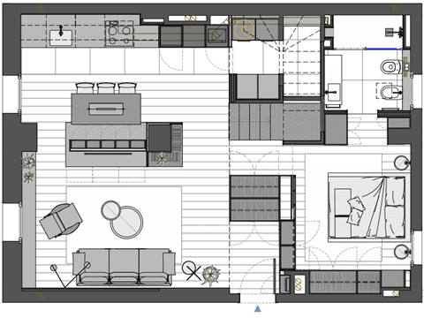
La clave del proyecto ha supuesto la redistribución por completo cada una de las estancias preexistentes, a fin de optimizar cada metro cuadrado disponible. Todos los usos están agrupados en la primera planta: cocina, salón, comedor, dormitorio y baño; y se destina la segunda planta a un amplio espacio para el ocio, enfocado principalmente a la afición por la lectura de sus habitantes.
En este sentido, se optó por reorientar e intercambiar la situación de la cocina y el salón por la del dormitorio y el baño de la primera planta. Donde antes había la cocina, ahora está el baño en suite del dormitorio principal y parte del salón original, ahora es el dormitorio.
La sencillez natural como estilo
![]()
El blanco domina paredes y parte del mobiliario, también la madera natural en el suelo de parqué, el techo y algunos muebles. Gracias a esta base neutra los numerosos cuadros, libros y objetos curiosos son la nota de color.
A su vez las piezas de mobiliario de Carl Hansen, Zanotta, Fritz Hansen y lámparas de Bolia, Santa & Cole y Artemide, entre otras, ofrecen un aire sofisticado al conjunto. Una apuesta segura gracias a la atemporalidad del buen diseño.
Es en la sala de estar de la planta superior, donde el color estalla de una forma más contundente, gracias a la alfombra, el tapizado de las sillas, y distintos jarrones, libros y cuadros, que dan un toque pretendidamente bohemio al espacio.
Una primera planta con todos los usos
La primera planta podría decirse que cumple con todo lo estrictamente necesario en una vivienda para una pareja: una amplia cocina, un confortable salón, comedor y una zona de dormitorio con su baño.
Un módulo de mobiliario realizado a medida -marca de la casa en numerosos proyectos de Coblonal– distribuye un amplio espacio abierto entre la sala de estar, por un lado, y la cocina y zona comedor, por el otro lado. Este módulo se divide en un mueble bajo y panel a media altura en la parte más longitudinal y una gran librería en la zona próxima a la escalera. De este modo, se aprovecha la gran altura del techo para almacenamiento, así como para zonificar y maximizar, al mismo tiempo, la percepción del espacio. Se logra un amplio ambiente abierto en altura y perfectamente zonificado en superficie.
Cabe mencionar la amplitud de la encimera de la cocina, que ofrece una cómoda superficie de trabajo y almacenamiento, que se completa con una práctica despensa y un lavadero situado bajo la escalera de acceso a la planta superior.
Al otro lado de la escalera, encontramos el acceso al dormitorio principal, al que ahora se accede mediante una puerta corredera. Directamente desde el dormitorio, con el blanco y la simplicidad de líneas y volúmenes como características principales, se accede a un luminoso baño equipado con un doble lavamanos y una amplia ducha, donde los tonos crudos y la madera natural son protagonistas, en coherencia con el resto de la vivienda.
Un refugio ideal para sumergirse en la lectura
En la planta superior, pensada originalmente como el espacio para la habitación suite, se ha eliminado un lavadero y se ha reducido el baño existente para lograr una amplia sala de estudio y lectura. En uno de los lados, encontramos una mesa de estudio con puestos de trabajo, enfrentados con una librería de obra para cada uno. En el otro lado, destaca la colorida zona de estar, con un sofá y dos butacas alrededor de una mesa de centro. Justo enfrente un conjunto de estanterías repleto de libros de arte e historia reclaman el protagonismo.
A ambos lados, esta sala de estudio y lectura dispone de amplios ventanales de acceso a dos terrazas. La más amplia, ideal para disfrutar del buen tiempo. En conjunción con el techo de madera, se convierte en un espacio ideal en el que apetece pasar largas horas leyendo, compartiendo conversación o trabajando muy a gusto.
“Para diseñar es preciso comprender cómo desean vivir las personas que lo van a habitar. Pues serán ellas quienes completarán y darán sentido al diseño con sus prácticas cotidianas. Como arquitectos e interioristas, diseñamos escenarios para que sucedan ciertas cosas en las mejores condiciones. Diseñar espacios es siempre una apuesta” explican desde Coblonal Interiorismo.
FOTOGRAFÍAS: HEIDI CAVAZOS
Sobre Coblonal:
COBLONAL INTERIORISMO es un estudio de arquitectura y diseño interior liderado por Joan Llongueras y Jordi Mercè que ha participado en más de 400 proyectos a lo largo de sus 20 años de actividad, tanto en viviendas, oficinas como locales comerciales. Coblonal se ocupa de todo el proceso, actuando como arquitectos, interioristas y decoradores en la definición y desarrollo del proyecto, así como encargándose de la posterior gestión y producción como empresa constructora. Son expertos en desarrollar proyectos integrales, que comprenden desde el concepto inicial hasta más mínimo detalle, concluyendo con la entrega llaves en mano.

